
20
US Census Bureau

25
Kuwait University College of Education

36
Apotheneum

55
New York Police Academy

32
Hong Kong Int'l Airport - T2

23
Empyrean Gate

25
Peel Police Operational Support Building

25
Cairo Headquarters

21
Peel Police 23 Division

24
Kuwait University College of Arts

18
Ben Gurion Int'l Airport

8
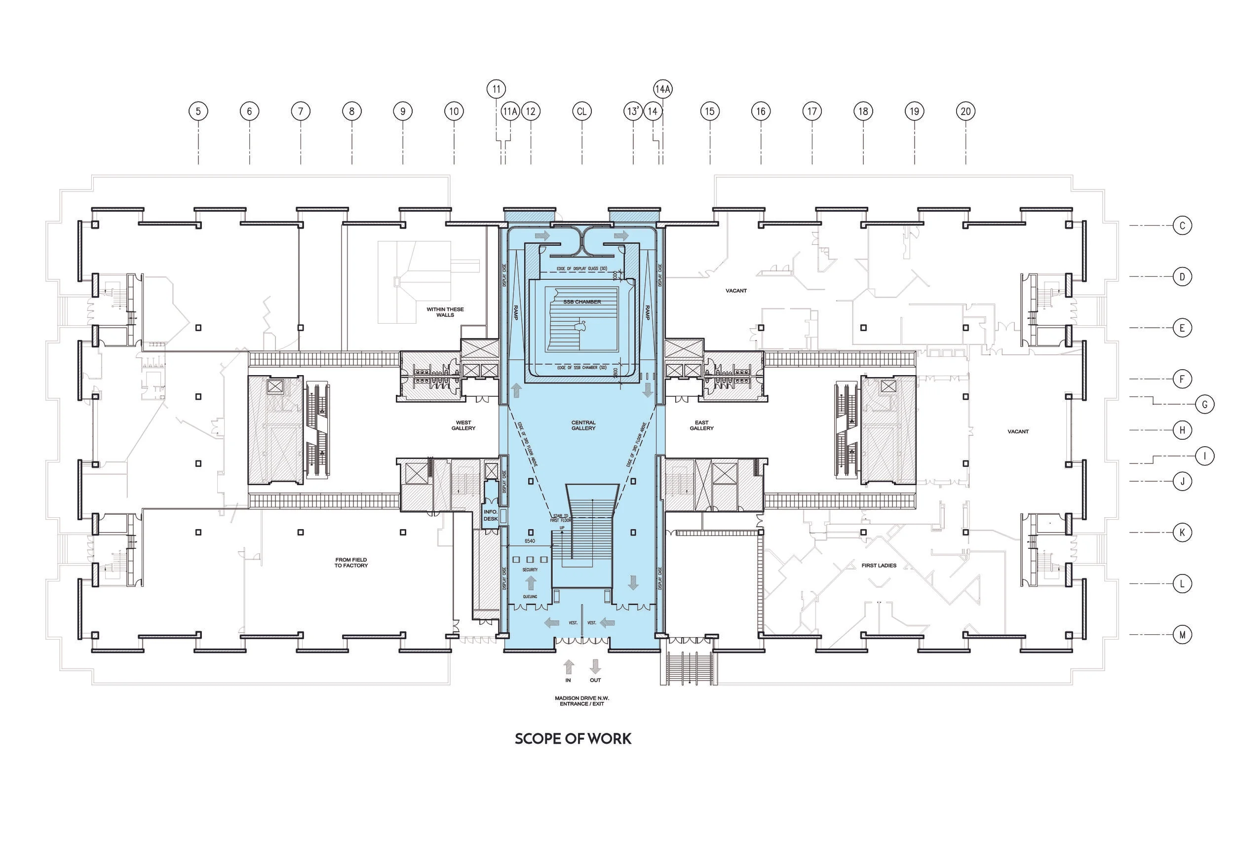
National American History Museum

28
Kuwait Police Academy

9
Masarat Multi-Use Facility

12
Blossom Tower

10
Hilton Resort Kuwait

28
The Sacred Grove

11
Remsen Hotel

20
Logan Terminal E

14
Kuwait University K-12 Teaching School

28
Goldwynn Cable Beach

7
Swissotel Jeddah

15
Palmerston Residences

25
PS 376Q

15
NeueHouse

12
Ritz-Carlton Beirut

5
The Ellipsis

6
Red Hook Piers

13
Central Bank of Kuwait

10
Bahrain Waterfront

7
Kempinski Madinah

11
7 Labatt Avenue

11
Spring Place

15
W Amman

7
SEEDing Higher Ground

14
Boubyan Bank

6
Effat University

11
Desertcreat College

12
Project X

17
Books of Remembrance

15
CAMH Neuroscience Building

19
CanadaLabs

11
Columbia University School of Nursing

9
GTAA Regional Transportation Centre

10
Woodbine Racetrack Walking Ring

13
Porsche Experience Centre Canada

10
Visitors Welcome Centre

8
MBS Villa

5
Sky Palaces

15
SEED One

47
The Mother Art

5
Kulindros Chess Set

6
Floral Figuration

5
Knives Out









